A címből én már érzem, hogy istállóból lesz még egy pár megosztva az oldalon, azonban ezt is el kell valahol kezdeni. Világszerte egyre nagyobb népszerűségnek örvend a régi, nagy, egyterű épületek újraértelmezése, átalakítása. Az eredeti funkció általában gyárépület, raktár, istálló és egyéb olyan tevékenység volt, ami nem a lakhatás feltételeit adta meg a környékbeliek számára. Emilio Eftychis ezen változtatott a jelenlegi épületben, hiszen annak funkciói, méreténél adódva végtelen számban kombinálhatók, bővíthetők, és válthatók egy szebb konstrukcióra. Anyaghasználat szempontjából, főként a beton, az üveg és a fém találkozik, a teraszon egy kis fával megrakva. A homlokzat felé zárt, szinte ablaktalan épület a saját fő tengelyére nyitott, így a hátsó kert felé egybeolvad a természettel az ablakok által. A nagy terek világosak, jól kihasználtak. A beton egységet a fém épületes csatlakozású garázs és a terasz bontja, egészíti ki azt. A ház Dél-Afrikában található, de lássuk inkább a róla készült bemutatót.
![]() |
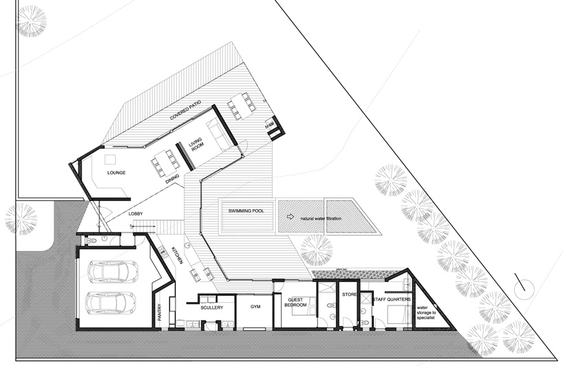
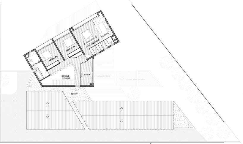
| földszint |
















